logo

Two Exam Room Mobile Health & Testing Clinic

Vehicle Summary:

Group: C
Wheelbase: 158"
Chassis: Ford E450
Capacity: 2 Passenger & Driver
GVWR: 14,500#
Body: Mobile Medical Clinic
Engine: 7.3L Gas
Sell Price: Call

360° Tour:

Vehicle Description:

Standard Chassis Equipment
  • Ford E‐450 7.3L V8 Gas Engine
  • 14,500 GVWR
  • 6 Speed Automatic Transmission
  • 225/75RX16E Tires
  • 50 State Emissions
  • Cruise Control
  • Rearview Mirror
  • Dual Batteries
  • 55 Gallon Fuel Tank
  • Daytime Running Lights
  • AM/FM Clock Radio w/4 Speakers
Standard Body Equipment
  • Welded Tubular Steel Cage
  • Welded Perimeter Steel Floor Frame Supported by Welded Crossmembers
  • Steel Track Mounted in Floors & Sidewalls
  • Steel Wheel Well Plates
  • Drive Shaft Guards
  • Rear Mud Flaps
  • Steel Cage Primered w/ Rust Inhibitor
  • Underbody Foam Sealed and Undercoated
  • 5/8" AdvanTech Subfloor
  • Fiberglass Front & Rear Cowls & Fiberglass Composite Exterior Sidewalls
  • One‐Piece Pre‐Molded Fiberglass Roof
  • Contoured Fiberglass Lower Body Skirts
  • 1' Polystyrene Foam Board Insulation
  • Tinted Solid Windows (28.5 x 34.5")
  • Tinted Solid Side Egress Windows Adequate to Meet FMVSS 217
  • Tinted Solid Rear Egress Window
  • Entrance Door ‐ Aluminum, Electric Bi‐Fold 29" w/Tinted Glass
  • Tinted A‐Panel Window in Cab
  • LED Upper Running /Clearance Lights per FMVSS 108 (5 Amber & 5 Red)
  • LED/ Reflective Amber Lower Midship Side Marker Lights (2)
  • LED Stop/Tail/Turn Lights Inc LED/Reflective Red Rear Side Marker Lights (2)
  • Red Reflectors (2 at Rear)
  • Incandescent Backup Lights & LED License Plate Lights
  • Heavy‐Duty Steel Powder‐Coated Rear Bumper
  • Velvac Exterior Mirrors (L & R)
  • 76" Interior Height
  • Flat Floor is Standard
  • OEM Dash A/C & Heat Standard
  • OEM Interior Rear View Mirror
  • Smooth Black Rubber Floor Under Seats
  • Ribbed Aisle (Black Rubber)
  • Durable Bright White Reinforced Fiberglass Ceiling & Sidewalls
  • Modesty Panel & Angled hand Rail at Left of Entrance Door
  • Grab Bar (18") at Right of Entrance Door
  • Modesty Panel & Stanchion Behind the Driver
  • State of the Art Electrical Panel w/ Printed Circuity
  • Color‐Coded High Temp GXL Wiring Harness w/Weatherproof Connectors
  • Convenience Lighting in Cab & Stepwell
Climate Control
  • Heat Coil, Added to the A/C System
  • (2) Roof Vent‐Fantastic 4000 Series Fan 14"
  • Roof A/C 15,000 BTU w/Digital Zone Thermostat
Doors/Windows/Mirrors
  • 1520 Series Sedan Door In‐Body Entry Door w/Window & Stepwell
  • Entrance Door, Electric ‐ Built In Cab, 29" (Standard)
Electrical
  • Terra Transit Pullout Battery Tray (N/A Transit Chassis)
  • Replace Standard Dome Lights w/4"x11" LED Lights (6)
  • (6) Pull 110v 14 Guage SL Cable Coiled up to Front Bulkhead Area
  • RVS Backup Camera ‐ 7" Mirror Monitor
  • Pull 110v 12 Gauge SL Cable Coiled up to Front Bulkhead
Exam Specific Electrical
  • Cummins Onan 7.0 Generator
  • 50 Amp Shore Power with Cord
  • Breaker Box, Breakers and Transfer Switch
  • 110v Package Includes 6 Outlets ‐ 12 Plugs
  • Inlet on Side of Vehicle for Plug In
Exterior
  • Exterior Skirt Storage 36"W 26"D 14"H Box with Door
  • Generator Prep & Skirt Door 43.5"W x 20"H
  • Running Board ‐ Wide Diamond Plate (Driver's Side)
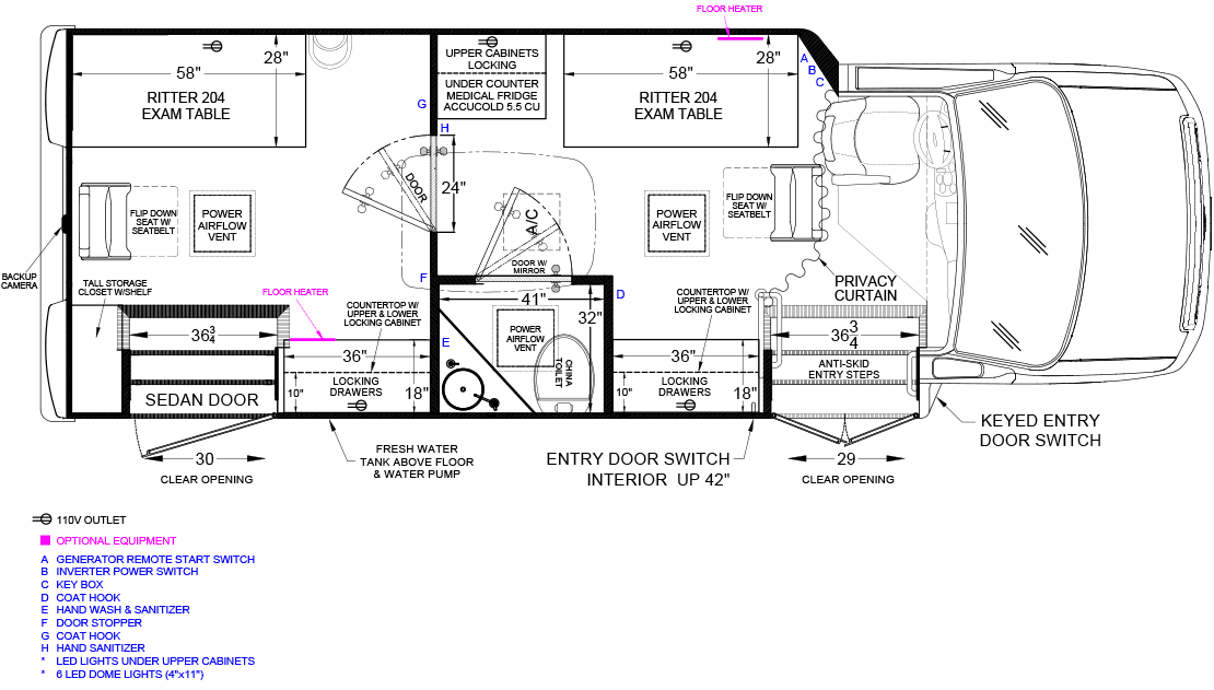
Front Exam Room
  • Small Lab Area w/Refrig & Desk Above w/Locking Upper Cabinets
  • Standing Physician's Desk and Chair
  • Restroom Package with Toilet, Sink and Tanks
  • Base Cabinets w/Locking Supply Drawer & Storage Doors
  • Midmark Ritter 204 Exam Table
  • Upper Cabinets with Locking Doors
Interior
  • Smooth Fiberglass Interior Sidewalls w/Gray Vinyl Corner Boards
  • (2) Flip Seat ‐ Featherweight, Single Mid‐Back 17" w/ Lap Belts
  • Gray Vinyl Padded Wall with Door
  • Bathroom Kit
  • Altro Faux Wood Flooring Upgrade (Iron Bamboo)
  • Additional Steel Strapping/Backer in Curbside Sidewall
  • (2) USR Belt, Single ‐ Per Passenger
  • Stanchion Pole w/Assist R.H. Entry
  • Interior Corner Boards (Standard)
Rear Exam Room
  • Midmark Ritter 204 Exam Table
  • Standing Physician's Desk and Chair
  • Base Cabinets w/Locking Supply Drawer & Storage Doors
  • Upper Cabinets with Locking Doors